[DE] «Architecture for Refugees» setzt sich für geflüchtete Menschen ein. Die Freiwilligen machen mit kollektiven Bauprojekten auf deren Situation in der Schweiz aufmerksam. Mit dabei: Ivo Grossert. Für den Katholiken ist das Engagement ein Zeichen von Nächstenliebe. Weiter zum Interview mit Alice Küng
Autor-Archive:tobiashaeusermann
«Unter Bäumen» Neubau Mehrzweckraum Berufsschule, Rüti
Das neue Volumen bildet den westlichen räumlichen Abschluss der Gesamtanlage und offeriert mit einer Passage zur Aula eine grosszügige und kurze Verbindung von alt und neu. Es entsteht ein durchgrünter Schulhof, mit neuen Sitzmöglichkeiten, der passgenau in einen präzisen Dialog mit den Altbauten tritt. Die denkmalwürdigen Fassaden bleiben integral erfassbar und werden durch den Neubau„«Unter Bäumen» Neubau Mehrzweckraum Berufsschule, Rüti“ weiterlesen
New Generations
[EN] New Generations is a European platform that investigates the changes in the architectural profession ever since the economic crisis of 2008. We analyse the most innovative emerging practices at the European level, providing a new space for the exchange of knowledge and confrontation, theory, and production. Since 2013, we have involved more than 300„New Generations“ weiterlesen
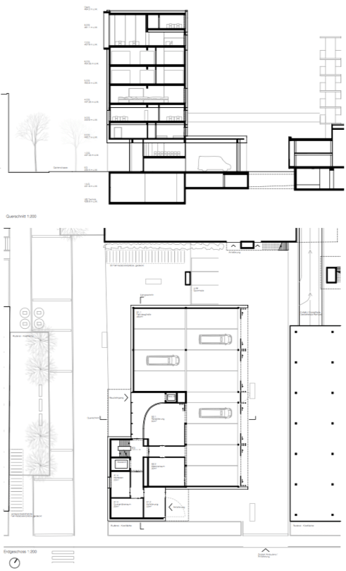
«Platanus» Neubau Verwaltungszentrum VBS, Bern
Der Neubau Verwaltungszentrum VBS orientiert sich am städtebaulichen Muster der Aufreihung von Gebäuderiegeln und der kammartigen Gebäudeausrichtung der bestehenden Stallungen und Militärbauten. Er übernimmt so die vorhandene Grossgeometrie beidseits der Platanenallee der Papiermühlenstrasse und führt die städtebauliche, riegelförmige Ausrichtung fort. Die Aufreihung von Baublöcken ist als übergeordnetes System figurbildend. Die neue Überbauung geht in die Fläche„«Platanus» Neubau Verwaltungszentrum VBS, Bern“ weiterlesen
«Mon tour» Neubau Stadtarchiv und Ambulanzgarage, Biel
Die Gebäudevolumen des Projektes reagieren auf verschiedene städtebauliche Massstäbe. Durch die Höhe des turmartigen Volumens wird ein visueller Bezug zum neu entstehenden Herzstück des Entwicklungsgebietes hergestellt, dem Stadtplatz Esplanade du Palais des Congrès und dem Laure-Wyss-Park. Das Gebäude tritt in einen Dialog mit dem skulpturalen Schlauchturm in der Mitte des Gevierts sowie dem Bürohochhaus des„«Mon tour» Neubau Stadtarchiv und Ambulanzgarage, Biel“ weiterlesen
